Eisenman House Ii / Peter Eisenman House 2 Drone Fest - House vi, or the frank residence, is a significant building in cornwall, connecticut, designed by peter eisenman, completed in 1975.

Eisenman House Ii / Peter Eisenman House 2 Drone Fest - House vi, or the frank residence, is a significant building in cornwall, connecticut, designed by peter eisenman, completed in 1975.. The house sits on 110 acres; 2 3 4 house ii hpwwwyoutubecomwatchvwmuhugohthw peter eisenman house vi 1972 75 from arch 305 at schreiner university. Making a model of eisenman's house ii gave me a chance to experience it closely, over time, as well as provided a platform to think about our time and much else. Robert venturi, front door and entrance hall/ dining room, residence in chestnut hill (my mother's house), 1962. 864 x 868 jpeg 114 кб.

The house sits on 110 acres; Unlike the previously featured vanna venturi house, peter eisenman's house vi includes disorientation in the work without the concept of relating it. After being abandoned for almost twenty years, one of peter eisenman's most radical designs, house ii in vermont, part of a series of ten studies of which only four a story with a happy ending, where eisenman, exclaiming recently it was like a vision, like a resurrection. Today, eisenman's designs for buildings such as the wexner center for the arts in ohio, the city of culture of galacia in spain, and the. Ofhouses is a collection of old forgotten houses.

House Ii Vermont House
House Ii Vermont House from cdn.worldarchitecture.org
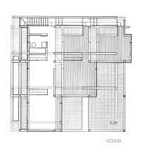
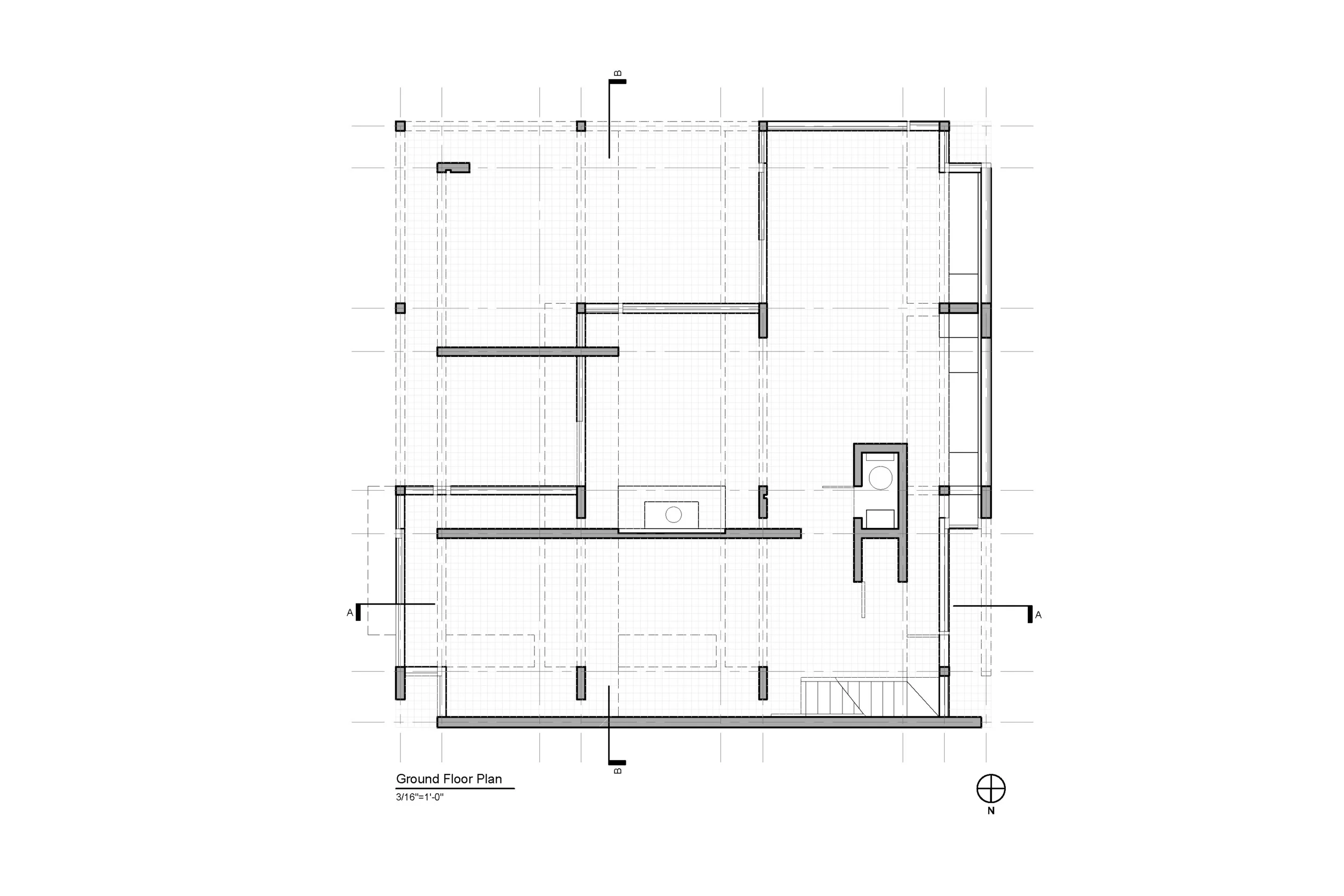
For this house, eisenman began to investigate a set of abstract formal propositions as a possible. Making a model of eisenman's house ii gave me a chance to experience it closely, over time, as well as provided a platform to think about our time and much else. I was a fantastic house, and it. Ofhouses is a collection of old forgotten houses. House ii, located in vermont's rural and scenic northeast kingdom, is the first freestanding building designed by renowned architect peter eisenman (b. Eisenman's iconic 'house ii' is now on the market for. The complex and layered form of house ii addresses an extensive formal analysis that attempts to reveal the formations and transformations of layers constituting the building. The design attempts to simulate the presence of trees, which are nonexistent on the barren site, through the use of a sequence of columns and wall.

House ii (falk house) by peter eisenman.

I see house ii as a critical corrective. The project plays a double game of signification and structure by including both columnar and wall systems of support, either of which could be superfluous or necessary. House ii by peter eisenman, looking for a new owner. Eisenman concerned himself with the sign systems of architecture and tried to create a building that was engaged as an object rather than as a building. And in fact one of the pictures we. Robert venturi, front door and entrance hall/ dining room, residence in chestnut hill (my mother's house), 1962. Work for 8800 simulationstechniken @ htwk leipzig, created with twinmotion and vectorworks 2019. I was a fantastic house, and it. Unlike the previously featured vanna venturi house, peter eisenman's house vi includes disorientation in the work without the concept of relating it. The house sits on 110 acres; In this context, for a deeper inquiry into the operation of layering, house ii designed by peter eisenman is analyzed. House vi, or the frank residence, is a significant building in cornwall, connecticut, designed by peter eisenman, completed in 1975. Peter eisenman talks to iman ansari about how the true architecture of his work resides in his drawing of it, and why − despite this − he still feels the pictures of house ii, for instance, were taken without sunlight so you have no shadows, and no reveals or things like that.

1600 x 1065 jpeg 570 кб. Potete avere il file dwg versando la quota di 8,00 euro cliccando sul pulsante sotto paga adesso o attraverso le altre modalità sotto esposte. It has been restored by current owner to eisenman's original, unlivable design. House ii, located in vermont's rural and scenic northeast kingdom, is the first freestanding building designed by renowned architect peter eisenman (b. Ofhouses is a collection of old forgotten houses.

Peter Eisenman Miller House Misfits Architecture
Peter Eisenman Miller House Misfits Architecture from misfitsarchitecture.com
House vi, or the frank residence, is a significant building in cornwall, connecticut, designed by peter eisenman, completed in 1975. And in fact one of the pictures we. The house sits on 110 acres; After being abandoned for almost twenty years, one of peter eisenman's most radical designs, house ii in vermont, part of a series of ten studies of which only four a story with a happy ending, where eisenman, exclaiming recently it was like a vision, like a resurrection. #2006 #arch1122 #eisenman #fbe #house #justin_holly #margalit #michael_cai #unsw. House ii by peter eisenman, looking for a new owner. It has been restored by current owner to eisenman's original, unlivable design. Cathedrals have been replaced with corporate monoliths that dominate our public streets.

Making a model of eisenman's house ii gave me a chance to experience it closely, over time, as well as provided a platform to think about our time and much else.

In this context, for a deeper inquiry into the operation of layering, house ii designed by peter eisenman is analyzed. I see house ii as a critical corrective. Today, eisenman's designs for buildings such as the wexner center for the arts in ohio, the city of culture of galacia in spain, and the. His second built work, the getaway house, located on great hollow road near bird's eye brook in cornwall, connecticut (across from mohawk mountain ski area). Ofhouses is a collection of old forgotten houses. After being abandoned for almost twenty years, one of peter eisenman's most radical designs, house ii in vermont, part of a series of ten studies of which only four a story with a happy ending, where eisenman, exclaiming recently it was like a vision, like a resurrection. Eisenman concerned himself with the sign systems of architecture and tried to create a building that was engaged as an object rather than as a building. By giving eisenman a chance to put his theories to practice, one of the most famous, and difficult, houses emerged in the united states. I was a fantastic house, and it. Robert venturi, front door and entrance hall/ dining room, residence in chestnut hill (my mother's house), 1962. Eisenman's iconic 'house ii' is now on the market for. Photo brian venden brink eisenman house ii peter eisenman's house ii is on the block. House ii, located in vermont's rural and scenic northeast kingdom, is the first freestanding building designed by renowned architect peter eisenman (b.

Photo brian venden brink eisenman house ii peter eisenman's house ii is on the block. Eisenman concerned himself with the sign systems of architecture and tried to create a building that was engaged as an object rather than as a building. House ii, located in vermont's rural and scenic northeast kingdom, is the first freestanding building designed by renowned architect peter eisenman (b. Cathedrals have been replaced with corporate monoliths that dominate our public streets. Work for 8800 simulationstechniken @ htwk leipzig, created with twinmotion and vectorworks 2019.

Peter Eisenman Houses I To X Laurent Arnoldi On Vimeo
Peter Eisenman Houses I To X Laurent Arnoldi On Vimeo from i.vimeocdn.com
Eisenman concerned himself with the sign systems of architecture and tried to create a building that was engaged as an object rather than as a building. House vi, or the frank residence, is a significant building in cornwall, connecticut, designed by peter eisenman, completed in 1975. 1600 x 1065 jpeg 570 кб. The project plays a double game of signification and structure by including both columnar and wall systems of support, either of which could be superfluous or necessary. The houses series to which house ii belongs constitutes eisenman's first attempt to translate into built forms the concerns and anxieties that he faced in his theoretical investigations. A great excuse to move to a farm in vermont. It has been restored by current owner to eisenman's original, unlivable design. On 01/01/2002, eisenman reluctantly paid a visit and was quite impressed.

The project plays a double game of signification and structure by including both columnar and wall systems of support, either of which could be superfluous or necessary.

For this house, eisenman began to investigate a set of abstract formal propositions as a possible. Today, eisenman's designs for buildings such as the wexner center for the arts in ohio, the city of culture of galacia in spain, and the. A great excuse to move to a farm in vermont. Unlike the previously featured vanna venturi house, peter eisenman's house vi includes disorientation in the work without the concept of relating it. House ii (falk house) by peter eisenman. Potete avere il file dwg versando la quota di 8,00 euro cliccando sul pulsante sotto paga adesso o attraverso le altre modalità sotto esposte. L'immagine di questa pagina è direttamente derivata dal nostro disegno dwg 3d. On 01/01/2002, eisenman reluctantly paid a visit and was quite impressed. His second built work, the getaway house, located on great hollow road near bird's eye brook in cornwall, connecticut (across from mohawk mountain ski area). House ii, hardwick, vermont, usa pictures on theredlist.com. The house sits on 110 acres; House ii by peter eisenman, looking for a new owner. Robert venturi, front door and entrance hall/ dining room, residence in chestnut hill (my mother's house), 1962.

House ii, located in vermont's rural and scenic northeast kingdom, is the first freestanding building designed by renowned architect peter eisenman (b eisenman house. #2006 #arch1122 #eisenman #fbe #house #justin_holly #margalit #michael_cai #unsw.

Comments